Contacte
Nosaltres
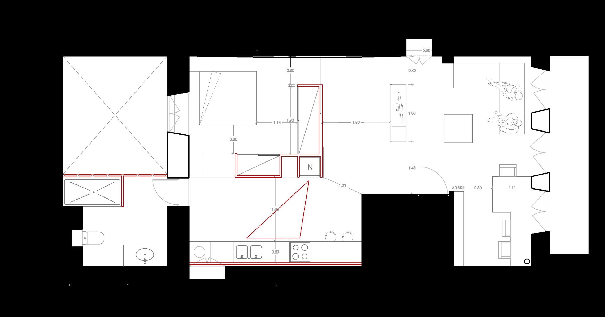
slide-0

Llívia G.

Obra nova de construcció tradicional amb pedra i fusta, donant resposta a una parcel·la de forma irregular. Joc de volums, alçades, i desnivells de terreny. Projecte de paisatgisme i interiorisme.
Llívia, Cerdanya
Obra nova de casa unifamiliar.
ATR arquitectura - Projecte i direcció + paisatgisme i interiorisme.
Construcció: Seinco Vallès, Instal XC, Santos Vallès.
Arquitecte tècnic: Iván Gómez.
Obra acabada.
slide-0